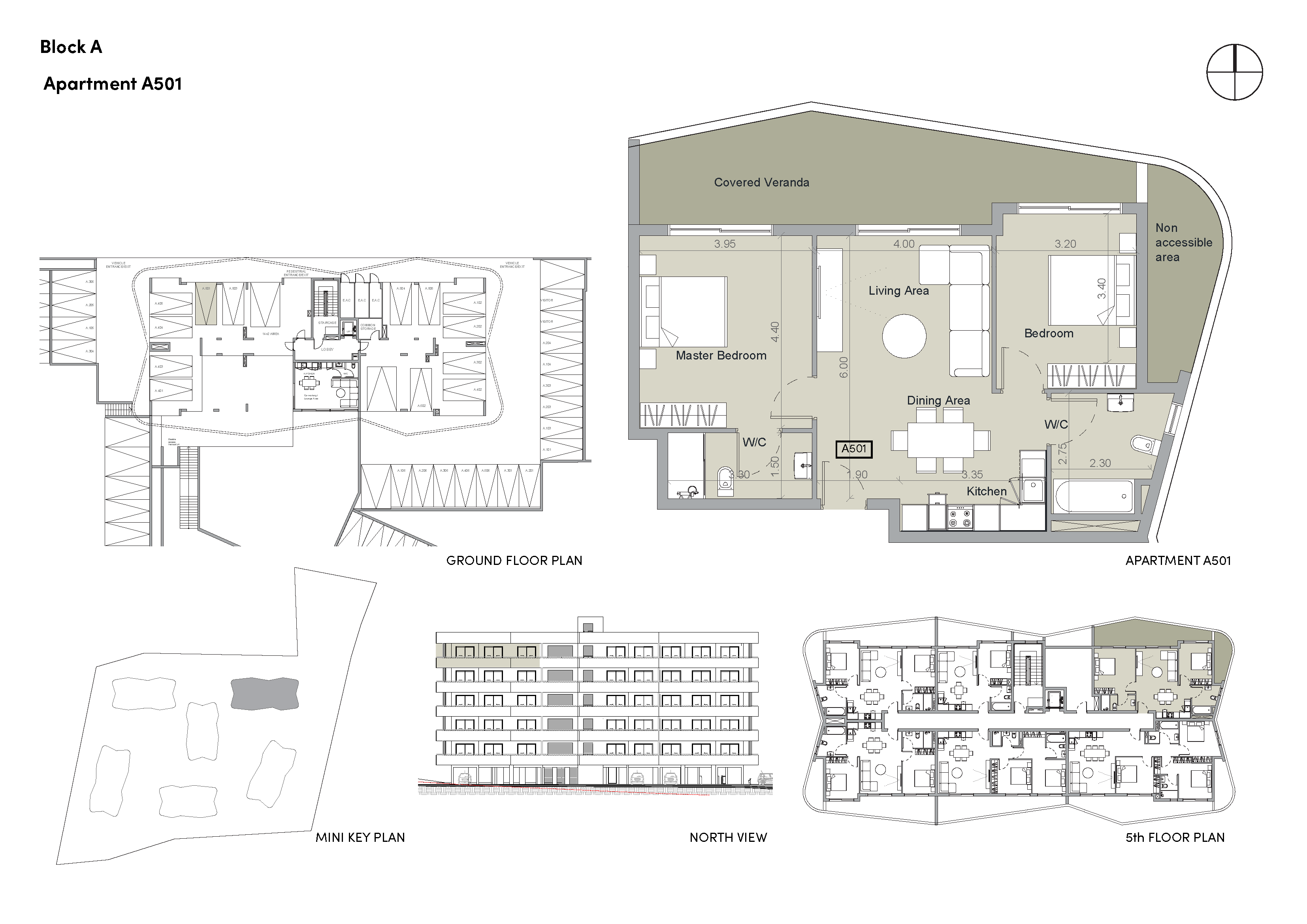
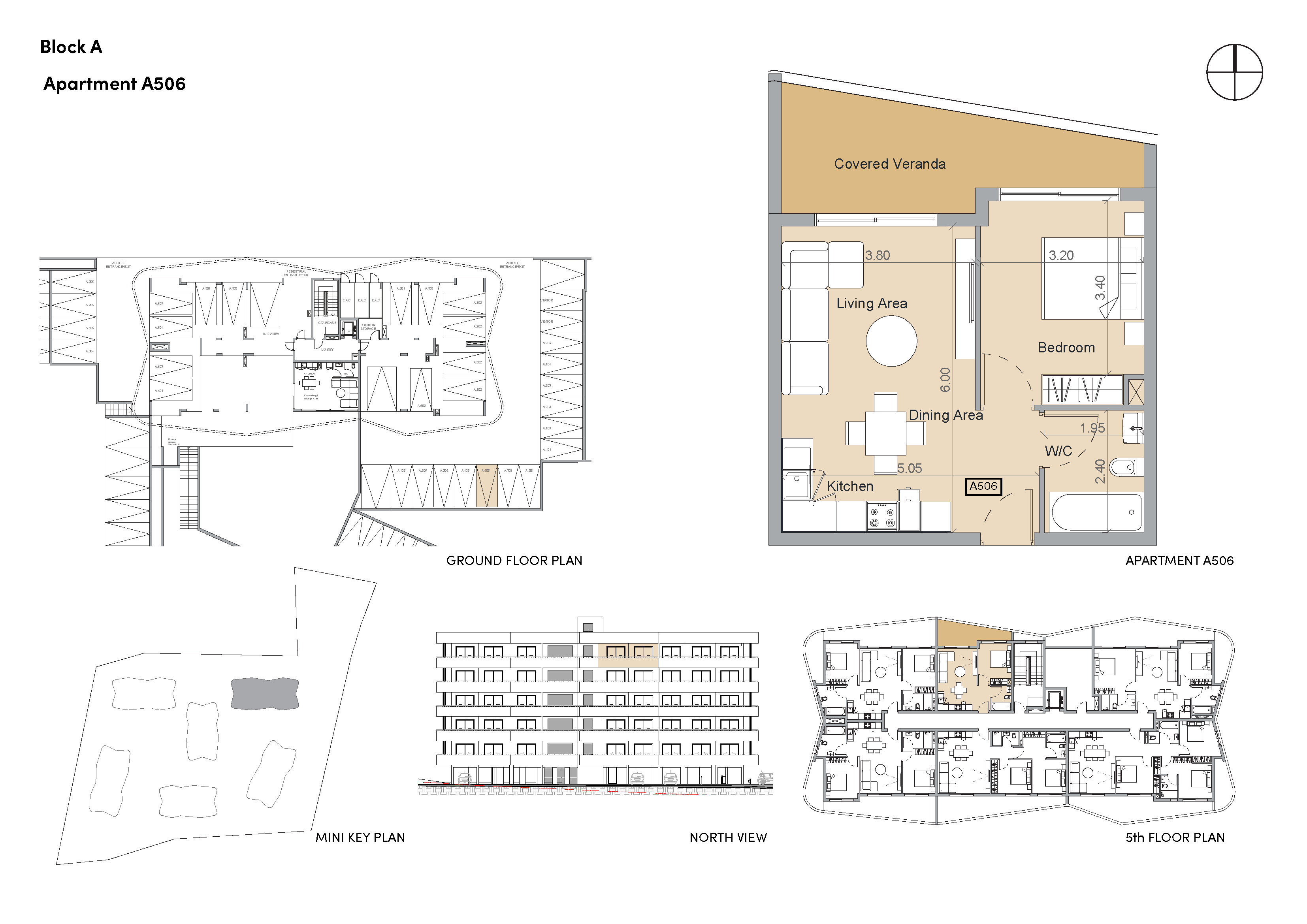
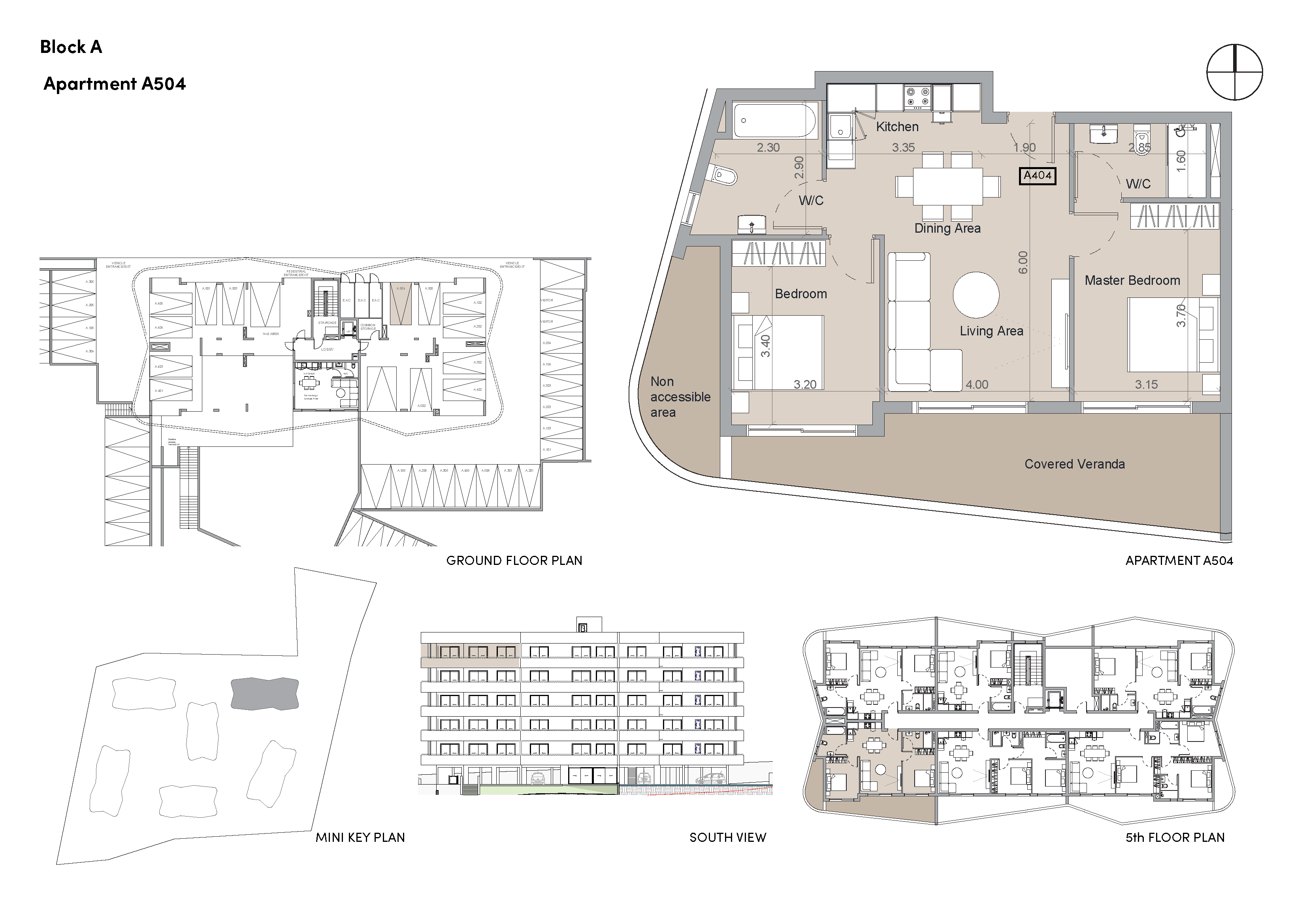
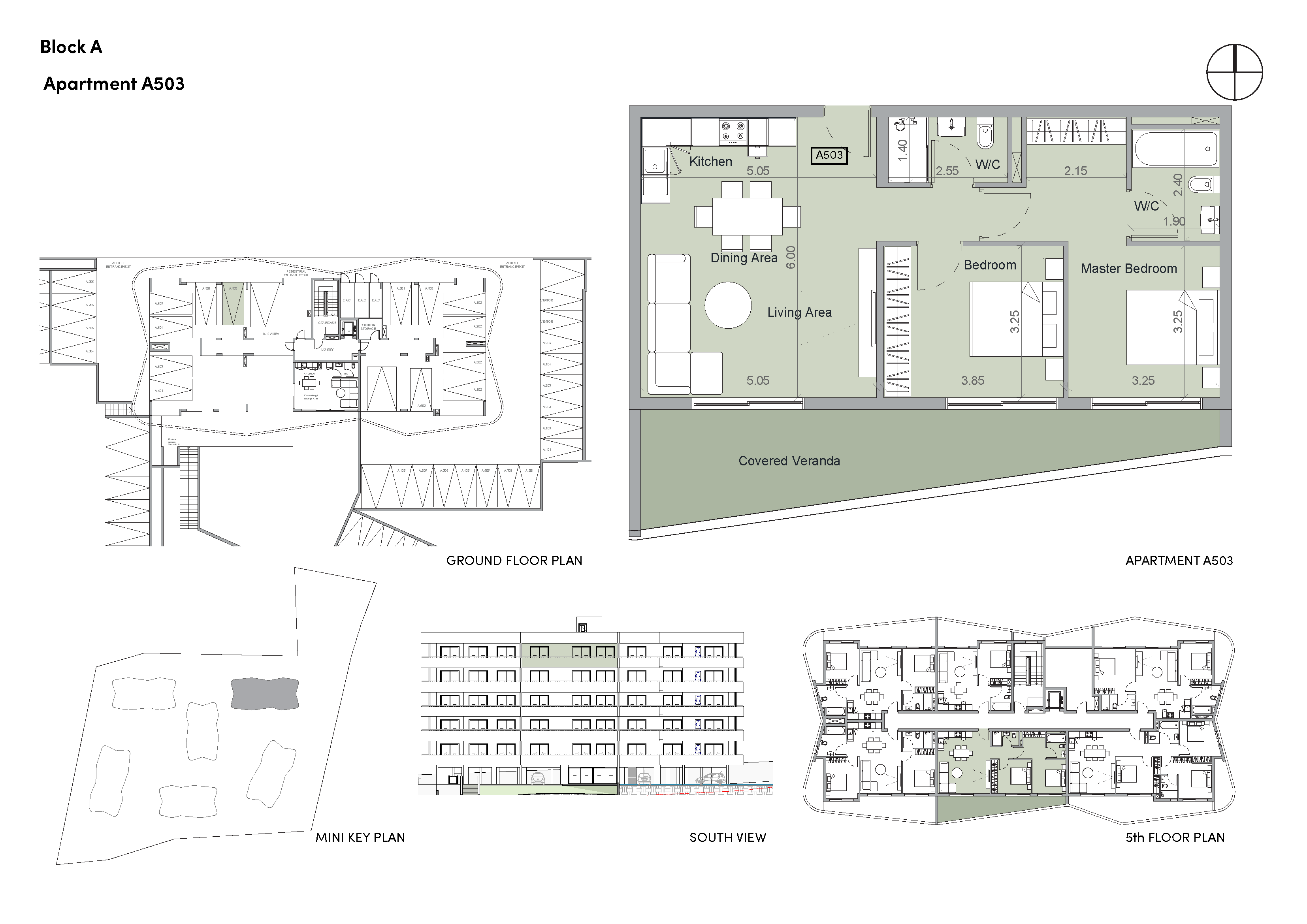
build. better. future

Nest is a contemporary residential development designed to offer a calm, comfortable and well-balanced living experience in one of Limassol’s most desirable districts. The architectural concept focuses on clean lines, naturally lit interiors and generous covered verandas that extend everyday living into the outdoors. Many apartments enjoy beautiful open views towards the city and the sea, enhancing the feeling of space and serenity. The development offers a selection of 1-, 2- and 3-bedroom apartments, planned with efficient interior layouts and quality finishing materials.
-
Modern residential concept designed for everyday comfort
-
City and sea views
-
Quiet and established residential district in high demand
-
Spacious layouts with natural light and generous verandas
-
High construction quality and contemporary technical specifications
-
Lifestyle amenities: pool, gym, sauna, co-working, children’s spaces
-
Private covered parking and storage for every apartment
-
Strong rental and resale potential supported by location demand
-
Close to coastline, international schools and main city infrastructure
The apartments are designed with durable, modern finishes that ensure comfort, quality, and timeless style:
Reinforced concrete structure with thermal-insulated exterior walls
Laminate parquet flooring in living areas and bedrooms; ceramic tiles in bathrooms and verandas
Contemporary melamine kitchen cabinets and wardrobes with clean, functional layouts
Artificial granite kitchen worktop with tiled backsplash
High-performance ALUMIL thermal aluminum frames and double-glazed windows
Chrome-finish sanitary ware and mixers
Provision for split A/C units and underfloor heating
Nest is situated in a well-established residential district known for its balance of accessibility and privacy. The area provides direct access to Kolonakiou Avenue, the highway, international schools, supermarkets, restaurants, fitness facilities and essential services.
While centrally connected, the neighbourhood maintains a calm residential atmosphere. The coastline and beaches are also nearby, offering easy access to seaside leisure, walking routes and outdoor recreation.
This makes the location highly suitable for both permanent living and investment.

availability

€390,000 + VAT
€3,604/m²

€550,000 + VAT
€4,260/m²

€383,000 + VAT
€3,800/m²

€440,000 + VAT
€4,365/m²

€442,000 + VAT
€4,448/m²

€276,000 + VAT
€4,289/m²

€448,000 + VAT
€4,508/m²

€446,000 + VAT
€4,425/m²

€398,000 + VAT
€3,678/m²

€570,000 + VAT
€4,415/m²

€404,000 + VAT
€3,734/m²

€590,000 + VAT
€4,570/m²

€390,000 + VAT
€3,869/m²

€279,000 + VAT
€4,336/m²

€454,000 + VAT
€4,504/m²

€283,000 + VAT
€4,398/m²

€456,000 + VAT
€4,589/m²

€396,000 + VAT
€3,929/m²

€411,000 + VAT
€3,799/m²

€599,000 + VAT
€4,640/m²

€462,000 + VAT
€4,649/m²

€460,000 + VAT
€4,563/m²

€403,000 + VAT
€3,998/m²

€615,000 + VAT
€4,764/m²

€288,000 + VAT
€4,476/m²

€414,000 + VAT
€3,826/m²

€294,000 + VAT
€4,569/m²

€464,000 + VAT
€4,603/m²

€466,000 + VAT
€4,690/m²

€410,000 + VAT
€4,067/m²






